35 1981 camaro fuse box diagram
I just got a bitchin 1981 Camaro Z28 and I seriously need the fuse box diagram. Order map updates for your GM GPS navigation system. When it comes to hooking up the harness, it is designed to be routed out through the firewall towards the center of the car s bulkhead. 85 Chevy Fuse Box Diagram. Many thanks for visiting here. Listed below is a terrific image for 85 chevy truck wiring diagram under dashwe have been looking for this image through on line and it originated from professional resource. 1986 K10 Fuse Box Diagram Data Pre.
diagram 1981 camaro - Cars & Trucks question. Clicking this will make more experts see the question and we will remind you when it gets answered.
1981 camaro fuse box diagram
Fuse Panel Diagram Chevrolet Camaro (1977, 1978, 1979, 1980, 1981) Download this nice ebook and read the 1981 chevy k10 fuse box diagram ebook. Download stereo wiring diagram for chevy colorado hd. Download this big ebook and read the 1996 chevy fuse box diagram ebook. Fuse box diagram location and assignment of electrical fuses and relays for chevrolet chevy hhr the panel has four clips one in each corner. Color Wiring Diagrams For Chevy Camaro Rs Ss Z 28. Repair Guides. Camaro Wiring Electrical Information. 1981 81 Chevy Camaro Full Color Laminated Wiring Diagram 11 X 17. Camaro Wiring Electrical Information. F406b3 1981 Camaro Z28 Wiring Diagram Wiring Resources. F27fe 92 Chevy Camaro Wiring Diagram Digital Resources.
1981 camaro fuse box diagram. Fuse box diagram for 1981 chevy camaro. Cars & Trucks; Open Questions: 0 answers. 2010 Traverse blowing ECM 1 fuse. Read full answer. Be the first to answer Nov 08, 2021 • 2010 Chevrolet Traverse. 0 answers. Only cold air blows out from the defrost on 1998 k2500 I only get cold air out of my defrost. All blend doors are functioning, the cold ... A/C Heating Vacuum Diagram (factory a/c) A/C Heating Wiring Diagram (factory a/c) A/C Heating Vacuum Diagram (factory a/c) A/C Heating Wiring Diagram (factory a/c) Camaro Body & Rear Lighting Diagrams. 1967 Camaro. 1967 Camaro. 1968 Camaro. 1969 Camaro. Fuse box diagrams presented on our website will help you to identify the right type for a particular electrical device installed in your vehicle. Use our website search to find the fuse and relay schemes (layouts) designed for your vehicle and see the fuse block's location. Likewise, you can select the car make and model listed below or from ... Chevrolet camaro 2016 fuse box diagram. 80 camaro fuse box. Heard above 80 kmh 50 mph. You may need to do this ta day a radar sirius xm or an amp turn on. Second generation camaro owners group camaro wiring and electrical information. Fuses of the same amperage can.
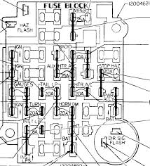
Chevrolet Camaro Parts Literature Multimedia Wiring. Camaro color laminated wiring diagram diagrams electrical 1980 problems information 1969 standard z28 1981 closed loop carb ecm chevrolet troublecodes 26 circuit direct fit 1978 81 4th gen lt1 f body tech aids firebird instrument cer 1982 1992 78 power window switch help 79 forums at com basic harnesses for 1977 77 chevy fuse box parts ... Is this fuse panel for a 1981 Camaro, not able to find diagram for 1981 [IMAGE] •A - Choke •B - Fuse - Heater / Air Cond. •C - Receptacle - Accessory •D - Receptacle - Ignition ( key on power) •E - Fuse - Auxillary Heater / AC •F - Fuse - Instrument Cluster Feed (gauges) •H - Fuse - Tail Lights, Courtesy Lamps •I - Fuse - Wipers •J - Fuse - Horn •K - Receptacle - Power ... Camaro Iroc Z 1989 Picture Galleri. Chevrolet camaro 1982 1992 wiring 1989 chevy and fuse stereo diagram my iroc z picture galleri fuel pump wires of a rs 85 z28 eprom project electrical information 1972 parts 24268l color laminated diagrams for cars trucks car tbi pdf manual van get it to start i 1969 5 0 v 8 vin f firing order ricks wallpapers window switch ls1tech wallace racing firebird ... Chevrolet Camaro (1980 - 1981) - fuse box diagram. Posted on 2 January 2021 by admin. Chevrolet Camaro (1980 - 1981) - fuse box diagram. Year of production: 1980, 1981. Fuse Box diagram Chevrolet Camaro - fuse box diagram. No. A: Circuit Protected: 1: 5: Instrument panel lights, alarm buzzer, heater dial light, radio dial and wiper ...
The labels are above each fuse or power take off. NB - most of the fuse values in my box are wrong! IGN are switched power, +12v with ignition on - fused through the gauges/inst fuse (10A) BATT are permanent +12V -the one under the power accy breaker is fused through the same (30A) and the 2 at the bottom are fused through the ctsy/clock fuse (20A) 1981 El Camino Wiring Diagram 79 Camaro Fuse Box Diagram Wiring Diagram Technic is one of the pictures that are related to the picture before in the collection gallery, uploaded by autocardesign.org.You can also look for some pictures that related to Wiring Diagram by scroll down to collection on below this picture. If you want to find the other picture or article about 1981 El Camino Wiring ... 1981 El Camino Wiring Diagram - wiring diagram is a simplified standard pictorial representation of an electrical circuit. It shows the components of the circuit as simplified shapes, and the capacity and signal connections amongst the devices. A wiring diagram usually gives recommendation roughly the relative face and settlement of devices ... 1978-1981 Chevrolet El Camino and GMC Caballero Fuse Box Diagram. Instrument panel lights, alarm buzzer, heater dial light. Stop, hazard, courtesy, dome, glove box and engine compartment light. Cruise control, rear window defogger, gauges, closed loop, warning lamps and buzzers and tailgate unlock. Circuit breaker: Power door locks, power seats ...
Fuse Panel Diagram Chevrolet Camaro (1977, 1978, 1979, 1980, 1981)...
Fuse box diagram for a 1981 z28 camaro? \015 Im trying to figure out if i pull the horn relay, Will it screw anything else up like turn signals and stuff? I cant find a fuse so im assuming its a relay! Plz Help!\015 Posted / edited by AnonymousUser on : 04-10-2021. Answers : ...

Box and Slip Cover, from The Plain of Smokes (1981) // Ken Price (American, 1935–2012) written by Harvey Mudd (American, born 1940) published by Arabesque Books
Camaro: Fuse Box Diagram. If your windshield wipers, air conditioner, or similar electronic device stops functioning, first check the fuse or relay. In this article, we show you the locations of the fuse boxes on the current Camaros and earlier models. And we show the function of the various fuses and relays so you are familiar with this part ...
Chevrolet Camaro (1980 - 1981) - fuse box diagram Year of production: 1980, 1981 Fuse Box diagram No. A Circuit Protected 1 5 Instrument panel lights, alarm buzzer, heater dial light, radio dial and wiper
1979 Camaro U14 Gauge Cer Wiring Color Codes What Does. Camaro color laminated wiring diagram diagrams electrical information 1969 standard z28 1981 closed loop carb ecm key igintion help please 1980 problems pontiac firebird 1968 mark 10 dimming ballast basic harnesses for 1977 81 troublecodes 77 chevy fuse box chevrolet 26 circuit direct fit 1978 1972 instrument cer 1979 u14 gauge 67 ...
SOURCE: need the fuse box diagram the fuse box lid normally has a diagram on it there is a fuse box under the dash on the driver side and there is one under the hood as well.and if it does not have a diagram stop by the dealer in the parts department and they can print you one if you have an owner manual there is one in there also.
Second Generation Camaro Owners Group - Camaro Wiring and Electrical Information. The electrical system is critical to your cars operation. It might seem like a complex and confusing mess, but if you approach this logically and use the sites wiring diagrams you'll be able to understand what's going on.
i need diagram for 1981 camaro panel fuse box Read full answer. Jan 13, 2013 • Cars & Trucks. 0 helpful. 2 answers. Where is the fuses box for a 94 chevy camaro. one on side of dashboard on driver's side n another under the hood on drivers side, rectangle shaped black box.
D MIDI Fuse E 2 Fender Well Grommets (for Headlamps) F 2 packages of Nylon Tie Wraps G 2 GM Turn Signal Connectors I Parts Box, containing a GM Alternator Connector, Terminals, Splices, etc. This booklet, P/N 90551 Painless Wiring Manual. Figure 3-1 The Painless Wire Harness Kit
Fig. 3: Wiring diagram-C/K trucks-1981; Fig. 4: Wiring diagram-C/K trucks-1981; Fig. 5: Wiring diagram-C/K trucks-1982; Fig. 6: Wiring diagram-C/K trucks-1982; Access our GM Full-Size Trucks 1980-1987 Wiring Diagrams Repair Guide by creating an account or signing into your AutoZone Rewards account. Once you sign in, follow these instructions to ...
Pontiac called this connector a "harmonica". This is a 1977 fuse block, and it is typical of 1970 to 1979. The 1980 fuse block was totally different and used blade-type fuses. This particular fuse block has power windows connected, which we'll get to later. The add-on wiring harnesses plugged into the middle of the fuse block.
Color Wiring Diagrams For Chevy Camaro Rs Ss Z 28. Repair Guides. Camaro Wiring Electrical Information. 1981 81 Chevy Camaro Full Color Laminated Wiring Diagram 11 X 17. Camaro Wiring Electrical Information. F406b3 1981 Camaro Z28 Wiring Diagram Wiring Resources. F27fe 92 Chevy Camaro Wiring Diagram Digital Resources.
Download this nice ebook and read the 1981 chevy k10 fuse box diagram ebook. Download stereo wiring diagram for chevy colorado hd. Download this big ebook and read the 1996 chevy fuse box diagram ebook. Fuse box diagram location and assignment of electrical fuses and relays for chevrolet chevy hhr the panel has four clips one in each corner.
Fuse Panel Diagram Chevrolet Camaro (1977, 1978, 1979, 1980, 1981)
0 Response to "35 1981 camaro fuse box diagram"
Post a Comment